ARCHITECTURE & SPECIAL PROJECTS
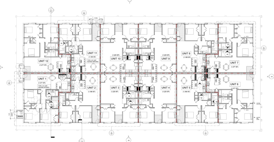
Commercial office conversion to apartments (Largo, FL)
River House lift and renovation (Bridgeton, NC)
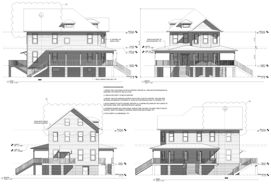
Tisdale House relocation and renovation (New Berm, NC)
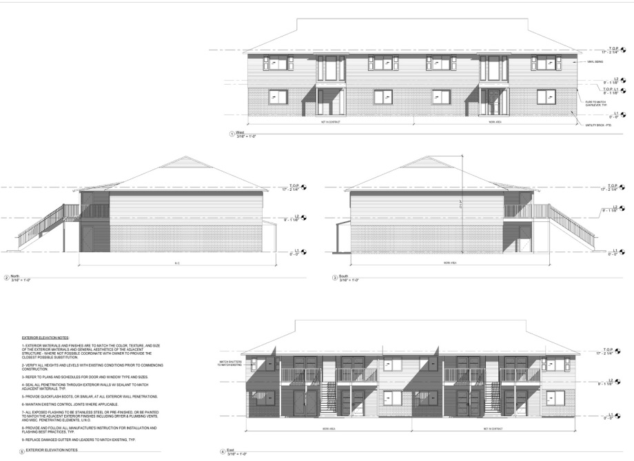
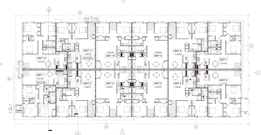
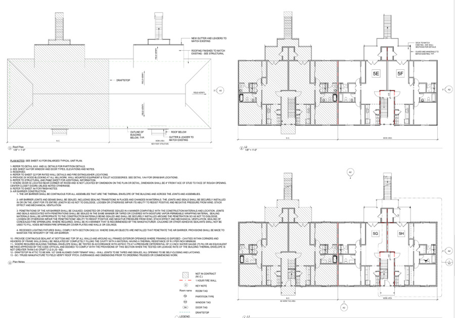
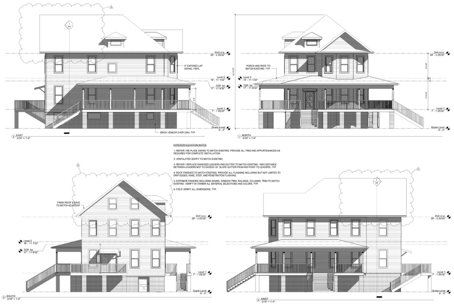
Kendall Apartment Restoration (Brunswich, GA)